Powercorn RW : chaudière au miscanthus & végétaux




Brûleur à gradin autonettoyant.

20 - 40 - 60 & 80 kW*







POWERCORN RW : flexible & robuste

Puissante mais flexible, la Powercorn RW a été conçue pour durer... Avec ses renforts spéciaux pour brûler des végétaux et son dessileur rotatif, elle peut fonctionner au miscanthus, au bois déchiqueté, et aussi aux grains énergétiques: triticale et orge, ou aux granulés de bois. * Selon le combustible utilisé, la puissance maximale de la chaudière varie.

Dans la chambre de combustion : en carbure de silicium, le combustible progresse sur une grille à gradins autonettoyante : technologie industrielle éprouvée. Combustion parfaite pilotée par sonde Lambda, les gaz remontent dans un généreux cylindre où les poussières et substances agressives sont neutralisées.

Full automatique : remplissage par vis, dessileur rotatif, nettoyage échangeur et cendrier sur roulette. Vu la quantité de cendres des végétaux, une aspiration des cendres vers une poubelle extérieure est conseillée.

La Powercorn est neutre en CO2 et préserve le climat.

Brûleur à gradins

Chambre de combustion réfractaire : en carbure de silicium. Une résistante grille à gradins autonettoyante en fonte assure un va et vient d'une marche sur deux pour acheminer le combustible jusqu'à l'évacuation des cendres.

Performance

Les gaz de combustion qui se forment sont convertis en énergie grâce à l'air secondaire dans une zone de fin de combustion aux larges dimensions. La poussière est séparée par un système cyclonique efficace.

Echangeur

Les gaz remontent dans un généreux cylindre où les poussières et substances agressives sont neutralisées. Des renforts inox protègent de la corrosion des gaz des végétaux. L'échangeur de chaleur est nettoyé en permanence grâce aux turbulateurs mobiles.




Aspiration cendres

Un cendrier valise avec roulettes recueille les cendres. Avec les végétaux, il est recommandé de choisir l'option : aspiration des cendres : pour récolter les cendres dans une poubelle de 240 litres.

Transport

Le pas de vis progressif et l'auge à géométrie optimisée assurent le plus haut degré de sécurité de fonctionnement.

Mécanique robuste

Moteur à rotation lente et extrêmement peu gourmand en électricité (400V). Couple très élevé atteignant 1.200 Nm.

Efficace

L'utilisateur détermine son chauffage : horaire et t°, puis la chaudière s'adapte. Une commande simplifiée est placée dans la maison.

Régulation complète

Gestion de l'installation : 1 circuit direct, 2 mélangés, ECS, tampon, pompe bouclage et v3v retour. Extensible à 9 circuits. Gère aussi une cascade de 4 chaudières.

Gestion à distance

Par internet, gestion de l'installation via ordinateur et/ou APP sur smartphone. Consultation : infos t°, quand vider les cendres, etc. Notification si défaut.




Qualité

La chaudière est composée de matériaux nobles. La production, l'assemblage et la finition sont contrôlés et répondent à de très hautes exigences.

Fiabilité

Les composants électroniques et électriques sont communs à toutes les chaudières GUNTAMATIC. Ceci assure un très haut niveau de fiabilité.

Longévité

Les moteurs et ventilateurs sont dimensionnés pour une durée de vie de plus de 20 ans : avec réserve de couple très élevée.




Dessileur


Quel volume prévoir ?

Pour les nouveaux bâtiments ou les installations existantes, on peut déterminer le volume de combustible consommé /an. Le pouvoir calorifique est très variable selon le combustible, mais par kW installé, la consommation annuelle de miscanthus sera de l'ordre de: 1 kW installé = 4 M3/an.

Vu ce très grand encombrement, la réserve miscanthus devra généralement être remplie plusieurs fois par an.



Comment aménager ?

La réserve peut être conçue de plusieurs façons différentes. La hauteur de stockage ne peut pas dépasser 5 mètres.



2 vis peuvent être placées en série. Ainsi la chaudière est distante de la réserve. Les 2 vis peuvent être positionnées avec un angle.

Pour concevoir une réserve enterrée, jusqu'à 1,5 mètre plus bas que le niveau de la chaudière, la vis intermédiaire peut être montée avec une inclinaison.



Dimensions

La vis ne peut pas dépasser une longueur de 7 mètres. Entre l'élément moteur et l'élement de passage de mur, des allonges de vis sont disponibles en : 22, 55, 110, 220, & 297 cm.

Le dessileur rotatif existe en plusieurs diamètres : 2 - 2,5 - 3 - 3,5 - 4 - 4,5 & 5 M.

Pour les cascades de plusieurs chaudières, vu les quantités de combustible à prévoir, il est recommandé de concevoir une réserve facile d'accès pour un déchargement par camion. La hauteur de stockage ne peut pas dépasser 5 mètres.



Powercorn RW chaudière aux végétaux

POWERCORN 50  
Classe d'efficacité énergétique A+  
Puissance nominale aux pellets 12-49 kW
Puissance max au myscanthus 40 kW
Puissance max au grains énergétiques 40 kW
Plage de t° chaudière 60 à 80 °C
Volume d'eau 147 litre
Pression de service max. 3 bar
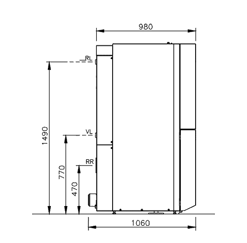
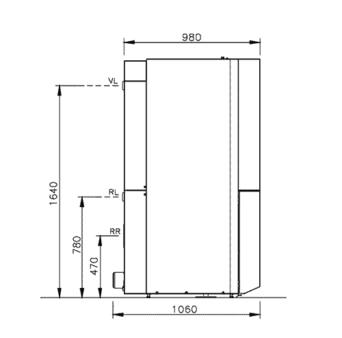
Départ retour 5/4'' Ø pouce
Gestion du retour avec V3V  
Débit min. pompe retour 4.250 lit / h
Serpentin décharge thermique 3/4'' Ø pouce
Besoin de tirage de cheminée 0,15 mbar
Tube de fumée 180 Ø mm
Ventillation chaufferie min. 100 cm²
Cendriers 80+12 lit
Largeur de passage idéale 110 cm
Largeur de passage sans vis 100 cm
Largeur de passage démontée 90 cm
Hauteur local idéale 240 cm
Poids de transport env. 667 kg
Raccordement électrique 400 / 13 V / A

Powercorn RW 30*



Powercorn RW 50* SPECIAL



Powercorn 60-80*


* puissance variable selon combustible



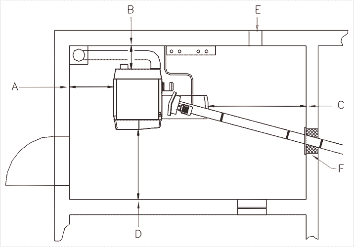
A : distance à gauche : 70 cm
Mini : 40 cm

B : distance à l’arrière : 70 cm
Mini : 50 cm

C : distance à droite : 70 cm
Accès maintenance par la droite

D : distance à l’avant : 100 cm
Mini : 70 cm

E : ventilation : min 100 cm² jusqu'à 50 kW.
Au delà : + 5 cm²/kW

HSP 30-50 kW : idéale 230 cm, mini : 210 cm.
HSP 75 kW : idéale 240 cm, mini : 230 cm.

Téléchargements